ID CP2764381

Apartament nr.1 cu 3 camere

Această proprietate nu mai este activă,
te invităm să vizualizezi proprietăți similare

ID CP2764381

89,500 € (negociabil)

Apartament cu 3 camere de vânzare
Est, Lugoj
72 mp
2025

Vrei sa locuiesti la bloc, cu cheltuieli mici si intretinere usoara, dar sa ai senzatia ca locuiesti la casa?

Avem 1 apartament cu 3 camere in scara A intr-o constructie cu 24 de apartamente in total de pe Strada Fagetului.

Blocul este structurata pe PARTER si ETAJ.

PARCARE: pretul include 1 loc de parcare, cu CF separat pentru zona/parcajul aferent;

BOXA: pretul include 1 boxa pentru depozitare in partea din spate a curtii.

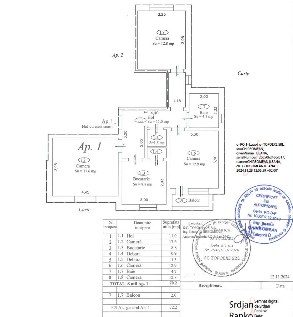
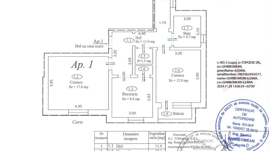
Apartamentul 1 este pozitionat la Parter, are suprafata construita de 80mp si utila totala de 72,2mp si este compartimentat astfel:

- Hol de tranzit si acces

- Dormitor 1;

- Dormitor 2;

- Living Room;

- Bucatarie;

- Camara pentru alimente;

- Spatiu Depozitare

- Baie;

- Terasa/Balcon;

Apartamentul este dotat cu AER CONDITIONAT in Living si 1 dormitor, si are pregatire pentru AC in celalalt dormitor.

Ferestre din tamplarie PVC cu geam TRIPAN.

Pret 89500 EURO cu TVA 21% inclus, usor negociabil.

Se poate vinde pe Persoana Juridica cu TVA Taxare inversa (74.900 EURO NET + TVA taxare inversa, adica 0)

DETALII BLOC: bloc cu 2 scari, pe 2 niveluri (Parter si Etaj);

An constructie si renovare: an constructie 2003 si renovate in 2025;

Structura: cadre de beton si caramida Porotherm de 40CM;

Izolatie pereti: polistiren 10cm;

Izolatie pardoseala: sapa cu fulgi 10cm, polistiren extrudat de 3cm;

Ferestre: tamplarie pvc cu geam termopan sau tripan;

Holurile/Casa scarii: placate cu gresie de 60x120cm ATLAS CONCORDE!!!, usile si ferestrele din Aluminiu cu

geam termopan.

DETALII APARTAMENTE:

Usa de intrare: Mega door Prestige (varf de gama de la Mega Door)

Usi de interior: Porta Doors, model Royal cu 3 balamale, toc imbracat complet si

pervaze de 8cm;

Pardoseala: Podele laminate EGGER, folie suport EGGER Silenzio, sunt Antifonice si Aquastop.

Gresia/Faianta: calitatea 1, import Italia, placi 60x120cm;

Hidroizolatie: Baile sunt complet hidroizolate cu hidroizolatie de la MAPEI, cu banda

perimetrala la toate colturile, etc.

Obiecte sanitare: WC suspendat cu cadru de la GROHE, WC – GROHE, capac GROHE,

LAVOAR cu MOBILIER KO-LO.

Baterii: TOATE bateriile sunt GROHE, la DUS avem baterie cu cap termostatat.

Dus: Walk In cu rigola in pardoseala si pereti de sticla care formeaza o „cabina” de 120x80/90cm,

Incalzirea: conform normelor NZEB noi in vigoare, cu doua centrale VIESSMANN in cascada, Boiler pentru apa calda, termostate Honeywell in fiecare camera.

Apa: grup de pompare cu bazine de retentie pentru presiune sporita.

ALTE DETALII:

- Fiecare apartament are acces la o curte de 3000mp cu zona verde;

- Curtea este imprejmuita complet si iluminata;

- Accesul se face prin sistem de deschidere automat cu telecomanda sau cu

apelare telefonica.

Citește mai mult

  • Tip apartament
    Apartament
  • Compartimentare
    Decomandat
  • Număr camere
    3
  • Dormitoare
    2
  • Număr bucătării
    1
  • Număr băi
    1
  • Etaj
    Parter
  • Suprafață utilă
    72 mp
  • Suprafață construită
    80 mp
  • Disponibilitate
    Imediat
  • Confort
    Lux
  • Stare interior
    Ultrafinisat
  • Imobil
    Bloc de apart.
  • Stadiu construcție
    Finalizată
  • An construcție
    2025
  • Construcție nouă
    Da
  • De la dezvoltator
    Da
  • Tip construcție
    Beton

Facilități

Apă
Canalizare
CATV
Curent
Curte
Debara
Gaz
Iluminat stradal
Internet
Izolație exterioară
Magazie
Mijloace de transport în comun
Străzi asfaltate
Telefon
Zonă pentru barbeque
Necesare:

Site-ul nu poate funcționa corect fără aceste cookie-uri. Vezi cookie-urile

Statistică:

Strângem statistici anonime despre voi, vizitatorii unici, pentru a vă îmbunătăți experiența dumneavoastră. Vezi cookie-urile

Marketing:

Pentru a ne promova mai eficient serviciile noastre, folosim cookies pentru a vă identifica și a vă oferi proprietăți și servicii personalizate. Vezi cookie-urile

Acest site folosește cookies, află detalii. Alege ce tipuri de cookies dorești să permitem: