ID CP2188162

De vanzare casa in Lugoj pe strada Bocsei

Această proprietate nu mai este activă,
te invităm să vizualizezi proprietăți similare

ID CP2188162

350,000 € (negociabil)

Casă / Vilă cu 7 camere de vânzare
Exterior Sud, Lugoj
284 mp
2001

De vanzare casa in Lugoj pe strada Bocsei.

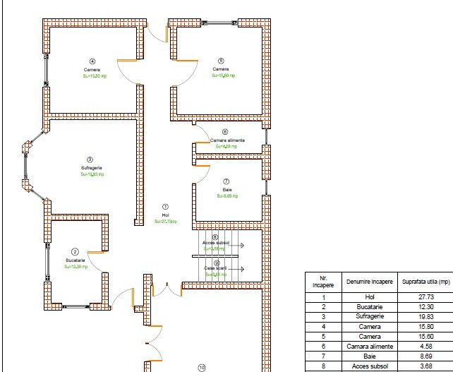
Va propunem spre vanzare o casa construita dupa tipologie D+P+2E, cu suprafata construita desfasurata de 284 mp structurata astfel:

PARTER: 154.99 mp

- camera 1;

-camera 2;

-camera 3

-sufragerie;

- bucatarie;

- baie 1;

-camara;

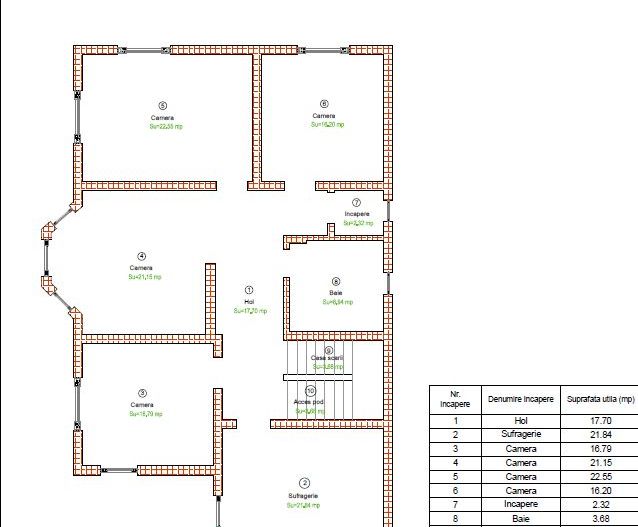
ETAJ: 129,59 mp

-camera 1;

- camera 2;

- camera 3;

-camera 4;

- baie 2;

-spatiu depozitare

DEMISOL: 67,29 mp

-Beci;

Casa este construita din blocuri ceramice, are ferestre din tamplarie PVC cu geam termopan si este izolata complet.

Incalzirea se realizeaza cu ajutorul centralei termice proprii .

Este libera de sarcini si se poate vinde imediat.

Se vinde complet mobilata si utilata conform fotografiilor iar pretul este de 350.000 EURO negociabil iar pentru mai multe detalii va rugam sa ne contactati.

Aceasta proprietate este reprezentata exclusiv de catre CEImobiliare, si nu percepem niciun comision din partea cumparatorilor!!!

Va multumim

Citește mai mult

  • Număr camere
    7
  • Disponibilitate
    Imediat
  • Tip casă
    Individual
  • Stare interior
    Finisat clasic
  • Suprafață utilă
    284 mp
  • Suprafață construită
    437 mp
  • Suprafață teren
    831 mp
  • Stadiu construcție
    Finisat
  • An construcție
    2001
  • Număr etaje clădire
    2
  • Număr subsoluri
    1

Facilități

Acoperiș
Apă
Apometre
Aragaz
Bideu
Boxă la subsol
Bucătărie închisă
Bucătărie mobilată
Bucătărie parțial utilată
Cabină de duș
Cadă
Calorifere
Canalizare
CATV
Centrală cu lemne
Centrală proprie
Contor electric
Contor gaz
Curent
Curte
Debara
Faianță
Ferestre PVC
Frigider
Gaz
Geamuri termopan
Gresie
Hotă
Iluminat stradal
Internet
Mijloace de transport în comun
Mobilat complet
Parcare biciclete
Parchet laminat
Pivniță
Scară interioară
Străzi asfaltate
Telefon
TV
Ușă intrare PVC
Uși interior celulare
Uși interior MDF
Vopsea lavabilă
Necesare:

Site-ul nu poate funcționa corect fără aceste cookie-uri. Vezi cookie-urile

Statistică:

Strângem statistici anonime despre voi, vizitatorii unici, pentru a vă îmbunătăți experiența dumneavoastră. Vezi cookie-urile

Marketing:

Pentru a ne promova mai eficient serviciile noastre, folosim cookies pentru a vă identifica și a vă oferi proprietăți și servicii personalizate. Vezi cookie-urile

Acest site folosește cookies, află detalii. Alege ce tipuri de cookies dorești să permitem: