ID CP2593836

De vanzare casa in Lugoj.

Această proprietate nu mai este activă,
te invităm să vizualizezi proprietăți similare

ID CP2593836

100,000 € (negociabil)

Casă / Vilă cu 4 camere de vânzare
Central, Lugoj
150 mp
1965

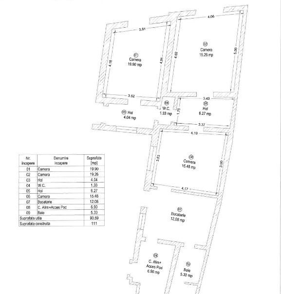
Va propunem spre vanzare un imobil cu suprafata construita desfasurata de aproximativ 111 mp, compusa din :

- Camera 1

- Camera 2

- Hol

-WC

- Camera 3

- Bucatarie

-Camera Alimente+acces pod

-Baie

Datorita compartimentarii, se poate imparti in 2 apartamete independente.

Facem precizarea ca primele doua camere sunt amenajate cu destinatie de spatiu comercial, cu acces separat din strada.

Imobilul este construit din caramida, ferestrele sunt din tamplarie de pvc cu geam termopan.

Incalzirea se realizeaza cu ajutorul centralei termice proprii pe gaz, iar confortul pe timp de vara este dat de instalatiile de climatizare.

Suprafata totala de teren este de aproximativ 344 mp.

Pretul de vanzare este de100.000 EURO, este usor negociabil iar pentru detalii va rugam sa ne contactati.

Se vinde mobilata si utilata dupa cum se poate observa si in fotografii, exceptand obiectele personale.

Va multumim,

“Aceasta proprietate este reprezentata si administrata in exclusivitate de catre CEImobiliare, NU se va percepe nici un comision din partea cumparatorului”

Citește mai mult

  • Număr camere
    4
  • Disponibilitate
    Imediat
  • Tip casă
    Individual
  • Stare interior
    Finisat clasic
  • Suprafață utilă
    150 mp
  • Suprafață teren
    388 mp
  • Stadiu construcție
    Finalizată
  • An construcție
    1965
  • Tip construcție
    Cărămidă

Facilități

Acoperiș
Apă
Apometre
Bucătărie închisă
Cabină de duș
Cadă
Calorifere
Canalizare
CATV
Centrală proprie
Contor electric
Contor gaz
Curent
Curte
Debara
Faianță
Ferestre PVC
Gaz
Geamuri termopan
Glet
Grădină proprie
Gresie
Iluminat stradal
Internet
Magazie
Mijloace de transport în comun
Mobilat complet
Parcare deschisă
Parchet laminat
Pivniță
Străzi asfaltate
Telefon
Ușă intrare lemn
Ușă intrare PVC
Vedere spre oraș
Vopsea lavabilă
Necesare:

Site-ul nu poate funcționa corect fără aceste cookie-uri. Vezi cookie-urile

Statistică:

Strângem statistici anonime despre voi, vizitatorii unici, pentru a vă îmbunătăți experiența dumneavoastră. Vezi cookie-urile

Marketing:

Pentru a ne promova mai eficient serviciile noastre, folosim cookies pentru a vă identifica și a vă oferi proprietăți și servicii personalizate. Vezi cookie-urile

Acest site folosește cookies, află detalii. Alege ce tipuri de cookies dorești să permitem: